Search

Leave a Message

Thank you for your message. I'll be in touch with you shortly.

Explore My Properties

Property Description

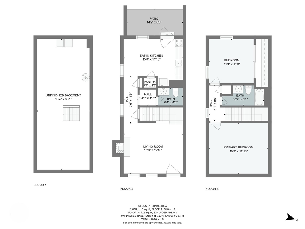
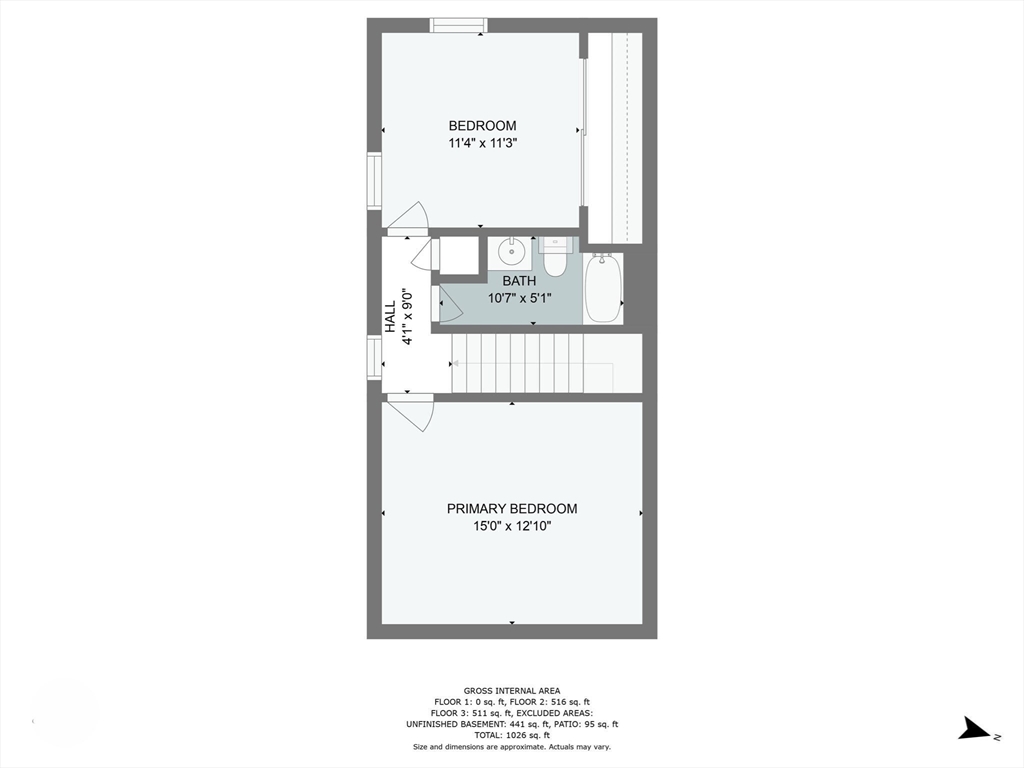
Cozy Winter, Refreshing Spring in Your New Home-Discover comfort and convenience in this charming townhouse-style condominium within the serene Summerwood Condominium Complex. in this beautifully updated 2-bedroom, 2-bath home.Nestled at the end of the complex, this home abuts a wooded area with access to trails. Enjoy the complex's pool and tennis courts, or take advantage of the prime location near Mashpee Beaches and the vibrant Mashpee Commons for shopping and dining. Centrally located for easy access to Falmouth or Hyannis.Key Features:Spacious & Bright: Two floors of modern living space featuring hardwood floors.Functional Layout: The first floor includes an eat-in kitchen with patio access and a full bath. The second floor features two bright bedrooms, ample closet space (including a linen closet), and a second full bath.Outdoor & Storage: Private patio, versatile basement for laundry/storage/potential office. Access to Pool Seasonally.

Overview

Property Status
For Sale
MLS ID
73460020
Property Type
Condo
Year Built
1983

Features & Amenities

Total Area
1,080 Sq.Ft.
Neighborhood
Cape Cod
Water Frontage
River, 1 to 2 Mile To Beach, Beach Ownership(Public)
Stories
2
Water Source
Public
Parking
Off Street, Assigned, Paved
Heat Type
Electric
Air Conditioning
Other
Appliances
Range, Dishwasher, Refrigerator, Dryer
Sewer
Inspection Required for Sale, Private Sewer
HOA Amenities
Pool, Tennis Court(s)
Sales Price
$390,000
Real Estate Tax
$1,614/yr
HOA
$450/mo
Zoning
R5

Downloads

300 Falmouth Rd # 21E

Schedule a Tour

I would love to show you this beautiful property. Please select your preferred date and time below. I will be in touch shortly to confirm your appointment.

Enter a valid email

Thank you

for your interest in 300 Falmouth Rd # 21E, Mashpee, MA 02649

back to page
300 Falmouth Rd # 21E
Navigate
Cape Cod

Explore Cape Cod

read more

Mortgage Calculator

Estimate your monthly mortgage payment, including the principal and interest, property taxes, and HOA. Adjust the values to generate a more accurate rate.
$0,000 Your Payment 20 15 65
$0,000 Your Payment

I'm Interested In

300 Falmouth Rd # 21E

or
  • CallAmy Vickers

    License #9586760

    (774) 327-9416
  • Explore Other

    Featured Properties

    • 87 Oyster Pond Road For Sale

      $4,750,000

      87 Oyster Pond Road, Falmouth, MA 02540

      • 4 Beds
      • 5 Baths
      • 3,089 Sq.Ft.
    • 24 Spoondrift Way Pending

      $1,469,000

      24 Spoondrift Way, Mashpee, MA 02649

      • 3 Beds
      • 1 Bath
      • 1,028 Sq.Ft.
    • 76 F R Lillie Rd Active Under Contract

      $1,200,000

      76 F R Lillie Rd, Falmouth, MA 02543

      • 4 Beds
      • 2 Baths
      • 1,968 Sq.Ft.
    • 76 F R Lillie Road Pending

      $1,200,000

      76 F R Lillie Road, Falmouth, MA 02540

      • 4 Beds
      • 2 Baths
      • 1,969 Sq.Ft.
    • 34 Kenwood Rd For Sale

      $798,000

      34 Kenwood Rd, Bourne, MA 02559

      • 4 Beds
      • 2 Baths
      • 2,314 Sq.Ft.
    • 34 Kenwood Road Pending

      $798,000

      34 Kenwood Road, Pocasset, MA 02559

      • 4 Beds
      • 2 Baths
      • 2,314 Sq.Ft.
    • 12 Beachwood Road Pending

      $695,000

      12 Beachwood Road, Bourne, MA 02532

      • 4 Beds
      • 3 Baths
      • 1,784 Sq.Ft.
    • 7 Horseshoe Cir For Sale

      $674,900

      7 Horseshoe Cir, Sandwich, MA 02563

      • 4 Beds
      • 2 Baths
      • 1,632 Sq.Ft.
    • 7 Horseshoe Circle For Sale

      $674,900

      7 Horseshoe Circle, Sandwich, MA 02563

      • 4 Beds
      • 2 Baths
      • 1,633 Sq.Ft.
    • 410 Surf Drive For Sale

      $495,500

      Private Address

    • 300 Falmouth Road APT 20C For Sale

      $415,000

      300 Falmouth Road APT 20C, Mashpee, MA 02649

      • 2 Beds
      • 2 Baths
      • 1,110 Sq.Ft.
    • 300 Falmouth Road APT 21E For Sale

      $390,000

      300 Falmouth Road APT 21E, Mashpee, MA 02649

      • 2 Beds
      • 2 Baths
      • 1,080 Sq.Ft.
    View All

    Follow Us On Instagram