Search

Leave a Message

Thank you for your message. I'll be in touch with you shortly.

Explore My Properties

Property Description

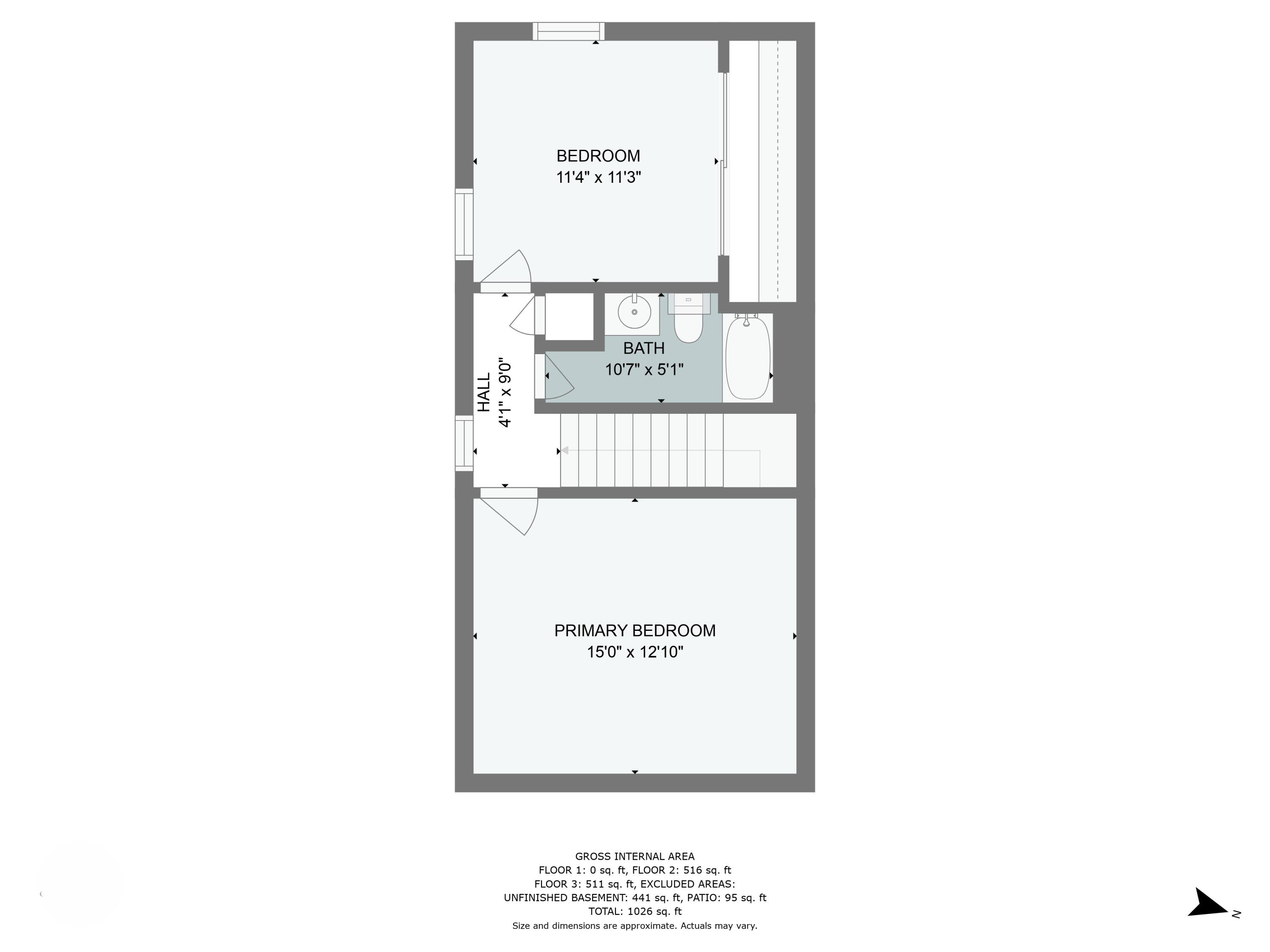
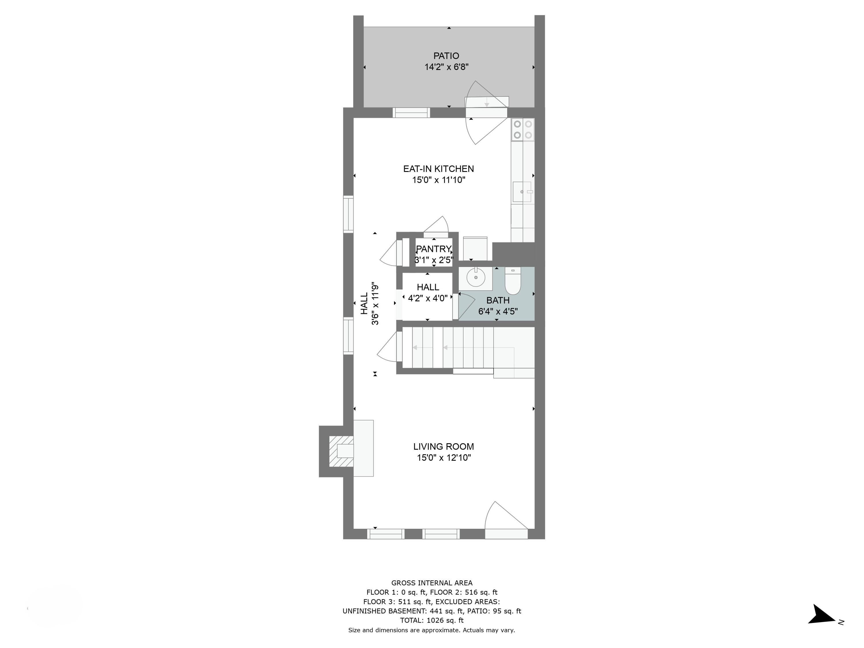
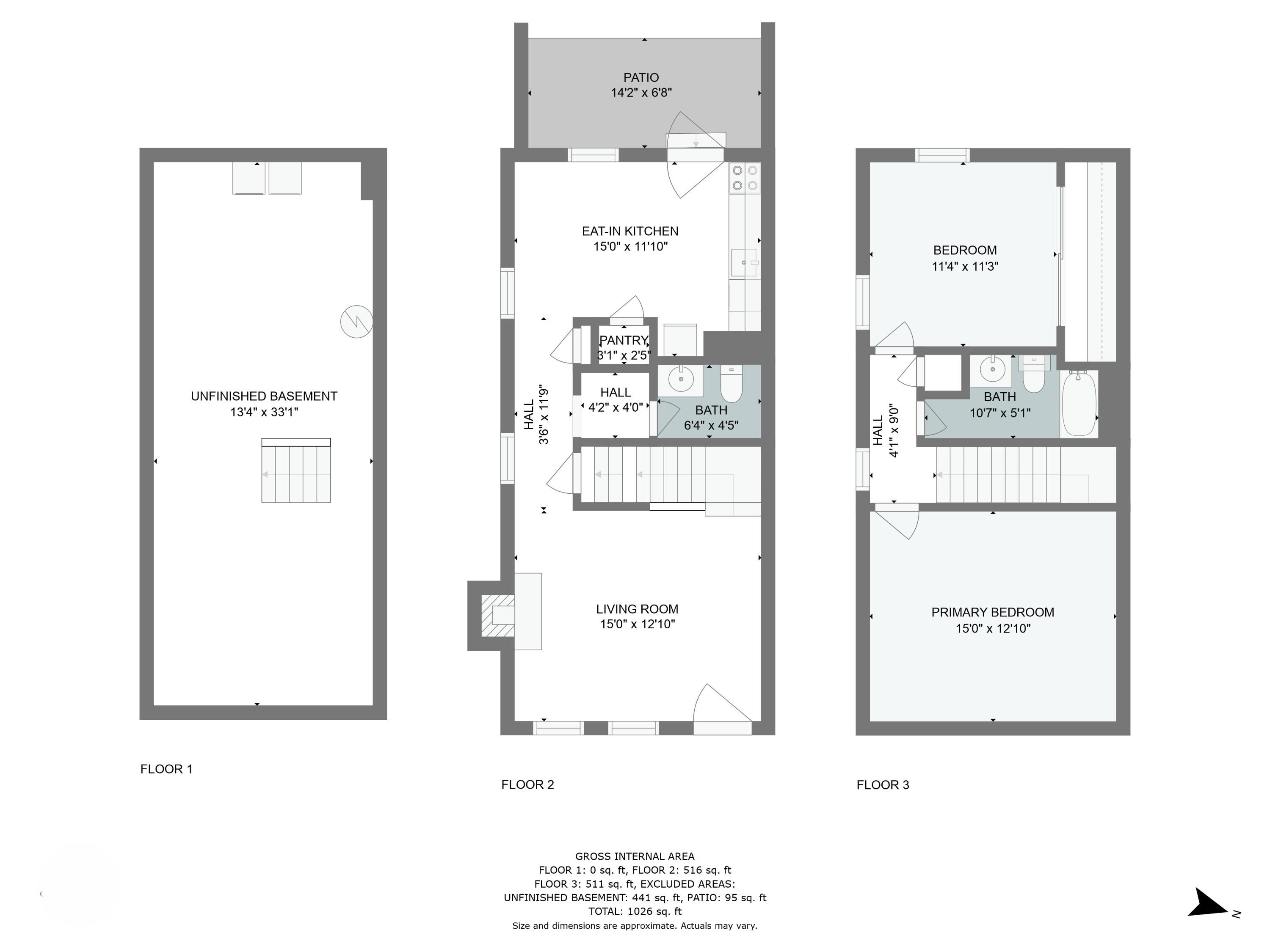
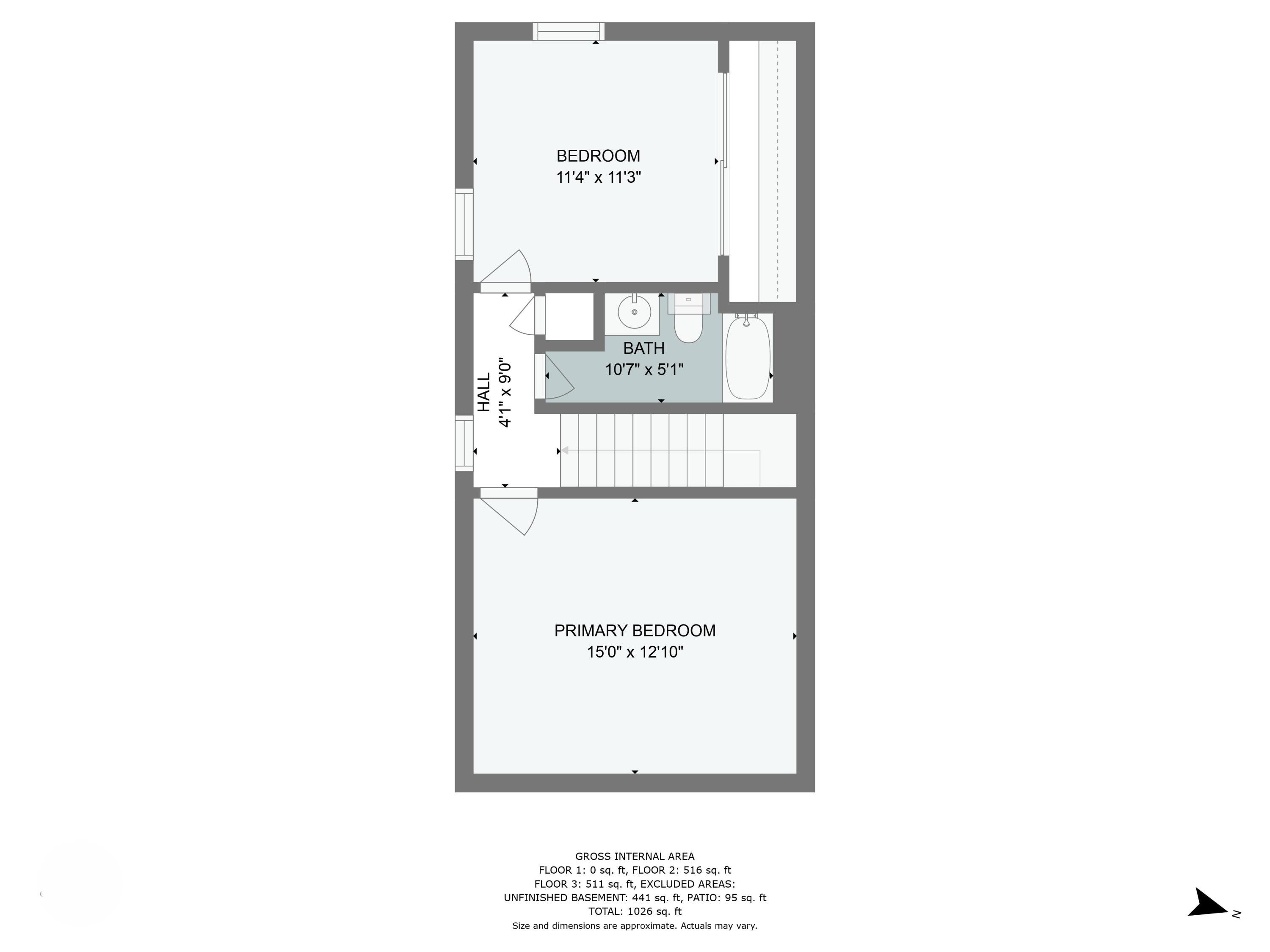
Refreshing Spring in Your New HomeDiscover comfort and convenience in this charming townhouse-style condominium nestled within the serene Summerwood Condominium Complex. Perfectly situated near the pristine Mashpee Beaches and the vibrant Mashpee Commons, you'll have easy access to shopping, dining, and outdoor activities.Key Features:Spacious Living: Enjoy two floors of living space.Modern Interior: Creating a bright and airy atmosphere.Functional Layout: The first floor boasts an eat-in kitchen with patio access, a spacious living room, hardwood floors, and a convenient full bath.Private Retreats: The second floor features a large primary bedroom with oversized closet space and a second bedroom with ample storage.Versatile Basement: provides additional storage and the potential for a finished den or office space.Outdoor Oasis: Relax on the private patio.Parking: One dedicated parking space and ample guest parking.Don't miss this opportunity to experience the beauty of Mashpee and the comfort of this delightful townhouse-style condominium.Full Basement currently has laundry room. It could be moved upstairs to have a larger basement space.

Overview

Property Status
For Sale
MLS ID
22405391
Property Type
Condo
Year Built
1983

Features & Amenities

Total Area
1,080 Sq.Ft.
Neighborhood
Cape Cod
Stories
2
Pool
Community
Lot Features
Conservation Area, School, Medical Facility, Major Highway, House of Worship, Near Golf Course, Shopping, In Town Location, Cul-De-Sac, South of Route 28
Air Conditioning
None
Other Interior Features
HU Cable TV
Sewer
Septic Tank
Substructure
Poured
HOA Amenities
Landscaping, Maintenance Structure, Snow Removal, Pool
School District
Mashpee
Sales Price
$415,000
Real Estate Tax
$1,614/yr
HOA
$450/mo
Zoning
R5

Downloads

300 Falmouth Road # 21E

Schedule a Tour

I would love to show you this beautiful property. Please select your preferred date and time below. I will be in touch shortly to confirm your appointment.

Enter a valid email

Thank you

for your interest in 300 Falmouth Road # 21E, Mashpee, MA 02649

back to page
300 Falmouth Road # 21E
Navigate
Cape Cod

Explore Cape Cod

read more
300 Falmouth Road # 21E
explore in 3d
  • Perfectly situated near the pristine Mashpee Beaches and the vibrant Mashpee Commons.

    Amy Vickers

Mortgage Calculator

Estimate your monthly mortgage payment, including the principal and interest, property taxes, and HOA. Adjust the values to generate a more accurate rate.
$0,000 Your Payment 20 15 65
$0,000 Your Payment

I'm Interested In

300 Falmouth Road # 21E

or
  • CallAmy Vickers

    License #9586760

    (774) 327-9416
  • Explore Other

    Featured Properties

    • 87 Oyster Pond Road For Sale

      $4,750,000

      87 Oyster Pond Road, Falmouth, MA 02540

      • 4 Beds
      • 5 Baths
      • 3,089 Sq.Ft.
    • 24 Spoondrift Way Pending

      $1,469,000

      24 Spoondrift Way, Mashpee, MA 02649

      • 3 Beds
      • 1 Bath
      • 1,028 Sq.Ft.
    • 76 F R Lillie Rd Pending

      $1,200,000

      76 F R Lillie Rd, Falmouth, MA 02543

      • 4 Beds
      • 2 Baths
      • 1,968 Sq.Ft.
    • 76 F R Lillie Road Pending

      $1,200,000

      76 F R Lillie Road, Falmouth, Falmouth, MA 02540

      • 4 Beds
      • 2 Baths
      • 1,969 Sq.Ft.
    • 34 Kenwood Rd For Sale

      $798,000

      34 Kenwood Rd, Bourne, Bourne, MA 02559

      • 4 Beds
      • 2 Baths
      • 2,314 Sq.Ft.
    • 34 Kenwood Road For Sale

      $798,000

      34 Kenwood Road, Pocasset, Pocasset, MA 02559

      • 4 Beds
      • 2 Baths
      • 2,314 Sq.Ft.
    • 7 Horseshoe Cir For Sale

      $674,900

      7 Horseshoe Cir, Sandwich, MA 02563

      • 4 Beds
      • 2 Baths
      • 1,632 Sq.Ft.
    • 7 Horseshoe Circle For Sale

      $674,900

      7 Horseshoe Circle, Sandwich, Sandwich, MA 02563

      • 4 Beds
      • 2 Baths
      • 1,633 Sq.Ft.
    • 410 Surf Drive For Sale

      $595,000

      Private Address

    View All

    Follow Us On Instagram